Mobile Home Manufacture & Salas | Cumberland Japan Inc.
[ Language: Japanese / English ]
Comfort Cabin House-type Mobile Home
House-type Mobile Homes | Cumberland Japan Inc.
House-typeNOSTALGIAJOURNEYROYALCLUBPREMIUMQUEENLAND BRIDGEB-B PALACEV-TRAVELCOMFORT CABINCustom order
V-Travel V-Travel

The V-Travel series is a compact house-type model of 2.4 meters in width.
The entrance space is partitioned from the living room by a wall, it can be used variously, for example for a storage place for outdoor goods, etc.
A mini kitchen and a unit bathroom are equipped in standard. You can choose a floor plan from 4 types.

For energy-saving specification, vinyl sash Low-E double-pane windows, LED ceiling lights and the body with heat insulating material for cold districts are adopted.

Gross width: less than 2.5m, gross length: less than 12m (including a hitch and eaves), height: less than 3.8m.
It is a small-size house model which is superior in mobility.

Last Updated: July 1, 2017

The entrance space has a margin even if a bicycle is put in. Cozy living room
Exterior
Exterior walls are vinyl siding.
(Photo: length 9m type)
Width 2.4 m
Porch lights
Outdoor outlet
Interior
Entrance space
Living room
Mini kitchen
Unit bathroom including a bathtub, a toilet and a washbasin
Bedroom
two-tone wallpaper finish
Low-E double-pane and vinyl sash windows
40 AMP breaker made in Japan
Air inlet
Ventilating fan
Energy-saving LED ceiling lights
Bedroom with a loft (option)
Under the loft
Loft space
Detachable loft ladder
OptionsOptions for House-type models
  
Furniture Set (D): [double curtains (blackout&sheer, wooden rail)/ a single bed/ a coffee table/ a refrigerator (90L)]
Floor heating
Air-conditioner
Exterior colors
  • Vintage Cream
  • White
  • Sand
  • Pebble Clay
  • Estate Gray
  • Red Wood
  • Shamrock
  • Heritage Blue
  • Natural Cedar
Option: Two-tone color
+80,000 yen (tax-excluded)
Interior colors

Casual Blue

Classic Beige

Noble Green

Elegance Pink

Fresh Yellow
Equipment colors
Exterior wall
Porch light / Sash
(standard color: white)
Roof
Interior wall
Floor: Vinyl flooring (C.F. sheet)
Option: Wooden flooring
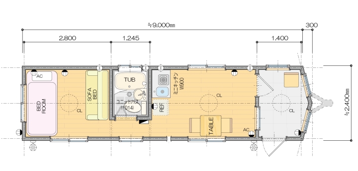
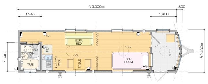
Floor plans

2.4m-wide model. Length is available from 5m to 10m (by one meter). Floor plans shown below are 9m type.

Type 1
Type 2
Type 3
Type 4
Loft type
"V-Travel" Equipment and specifications   [House-type, 2.4m-width model]
Standard: Std / Option: OptOptions for House-type models
Model V-Travel
Model number VT724 VT824 VT924 VT1024
Price (tax-excluded) / Unit: JPY 8,000,000 8,100,000 8,200,000 8,400,000
Price (tax-included) / Unit: JPY 8,800,000 8,910,000 9,020,000 9,240,000
Equipment 7m 8m 9m 10m
EXTERIOR
  [Roof] Galvalume roof Std Std Std Std
[Outer Wall] Vinyl siding Std Std Std Std
Vinyl sash double-pane windows with Low-E glass and argon gas fill Std Std Std Std
Entrance door Std Std Std Std
Porch lights Std Std Std Std
Outdoor waterproofing outlet (1) Std Std Std Std
INTERIOR & EQUIPMENT
  [Interior wall] Cloth finish Std Std Std Std
[Floor] Waterproof flooring (C.F.sheet) Std Std Std Std
LED ceiling lights Std Std Std Std
Mini kitchen (90cm-width) 1 range (gas or IH)
Range hood fan
Std Std Std Std
Bathroom (shower, bathtub, washbasin, toilet) Std Std Std Std
Wall outlets Std Std Std Std
Wall outlet for air-conditioner Std Std Std Std
40 amps breaker (made in Japan) Std Std Std Std
Inlet port Std Std Std Std
Ventilating fan Std Std Std Std
STRUCTURE
  Frame of channel steel Std Std Std Std
Axles with rear brakes Std Std Std Std
2x4 structure Std Std Std Std
Waterproof sheet Std Std Std Std
Truss roof (resist snow accumulation) Std Std Std Std
Heat insulating material for cold districts (wall, roof, floor) Std Std Std Std
SIZE
  Body length (cm) 700 800 900 1000
Body width (cm) 240 240 240 240
Height (from the ground) (cm) 360 360 360 360
NOTES: Specification may change due to makers' specifiation changes or supply situations of parts or materials. Photos shown in this page may include optional equipment and specifications, or props that are for photography purposes only. Colors shown may vary due to reproduction and printing processes. Floor plan images may include optional furniture or home appliances depicted as arrangement examples.
Mobile Home | Cumberland Japan Inc.
Cumberland Japan reserves the right to change or discontinue models, prices, materials, equipment, specifications, and availability at any time without notice.
Copyright (C) 2012 Cumberland Japan. All Rights Reserved.